Lediga kontorslokaler i Umeå residens
Välkommen till en byggnad full av historia. Här finns nu lediga kontorslokaler att hyra.
Residenshuset i Umeå ligger öster om stan och vetter tillsammans med sin park mot älven. Nu finns det möjlighet att hyra lokaler i detta anrika residens. En av Umeås vackraste byggnader som stod färdig 1894.
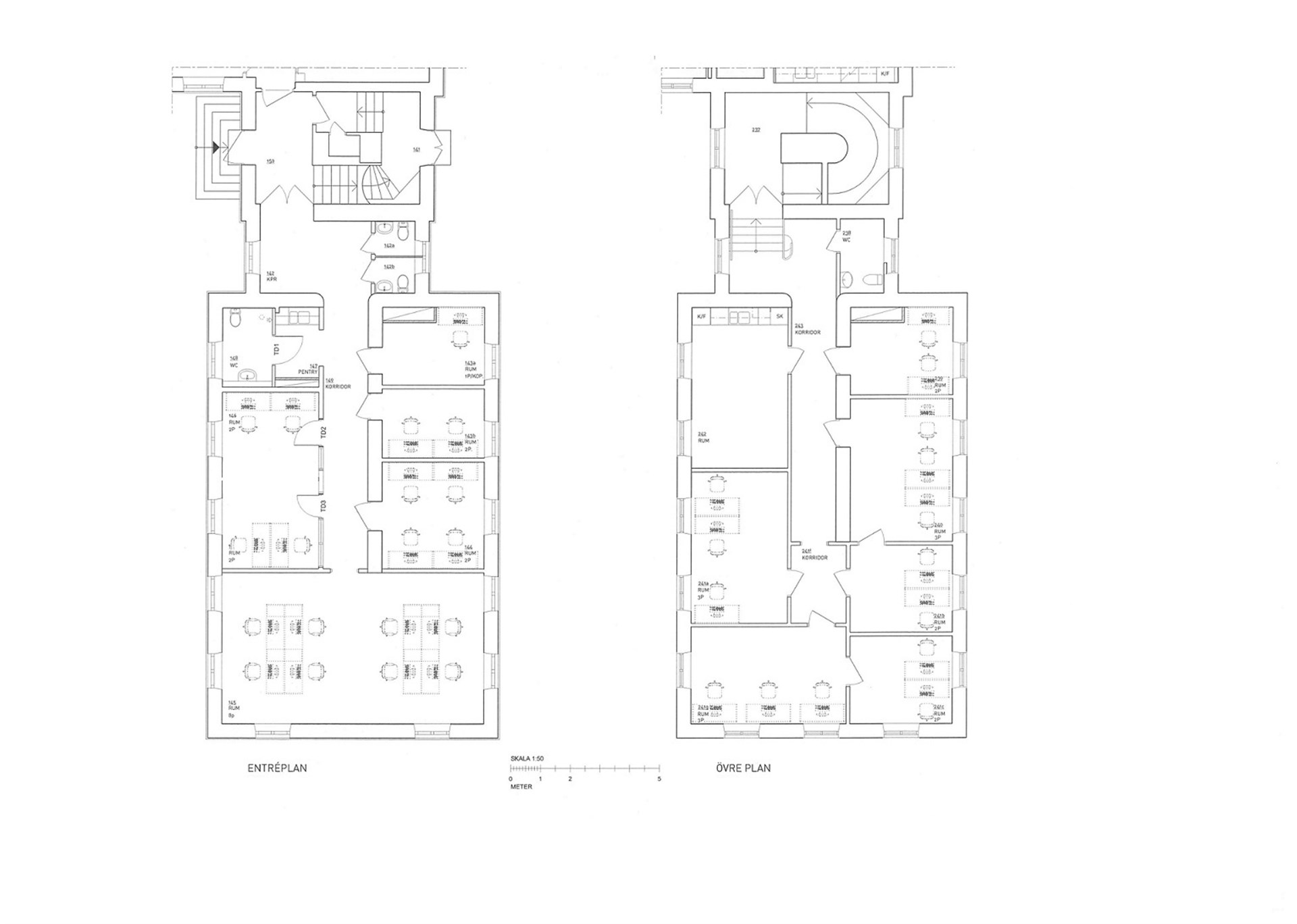
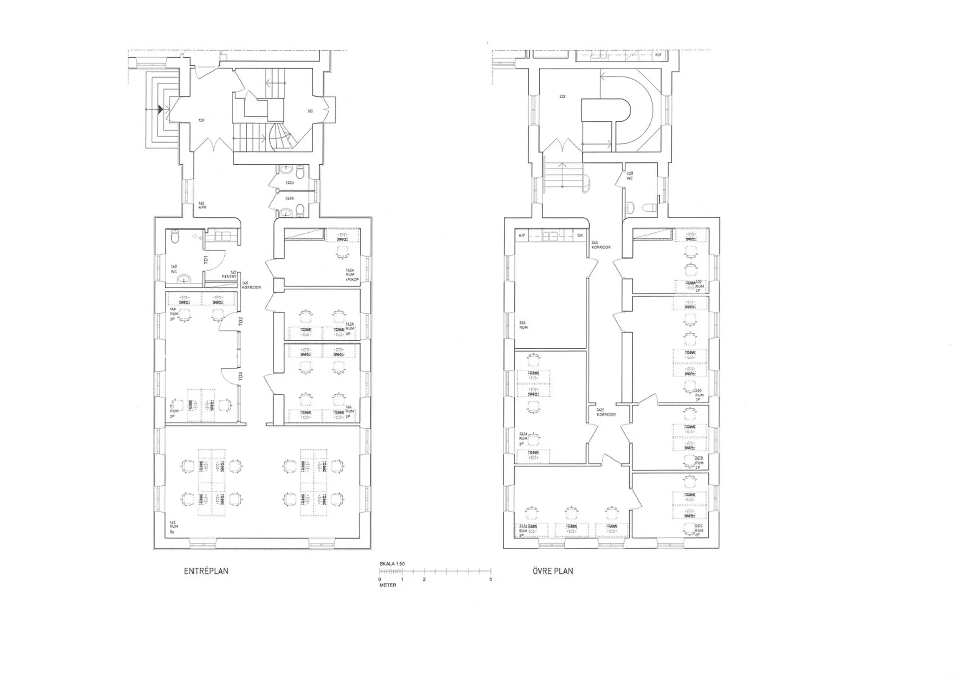
Lokalen med en totalyta på 273 kvm är uppdelad på två våningsplan, båda belägna i husets västra flygel. . Våningsplanen är på 136 respektive 137 kvm och lämpar sig för ca 10 arbetsplatser per plan.
Närhet till parkering samt kommunikation finns.
KONTAKT
Christer Bergh (Mäklarhuset)
Ansvarig mäklare
070 666 40 71
christer.bergh@maklarhuset.se

Foto: Erika Lidén

Foto: Erika Lidén
För ytterligare information om hyresvillkor och visning kontakta fastighetsmäklare Christer Bergh, kontaktinfo ovan.
Datum och tid för visning samt tillträde sker enligt överenskommelse.
Kontakt hos Statens fastighetsverk är Viktoria Anderzén Köhler.






